Ve Šternberku vznikne atraktivní lokalita pro výstavbu rodinných domů  

Stavba rodinného domu
Ilustrační foto Pixabay

ŠTERNBERK – Ve Šternberku se začne budovat atraktivní lokalita pro výstavbu rodinných domů. Místo, kde vznikne kompletní dopravní a technická infrastruktura, navíc nabízí blízkost lesa a kvalitní občanskou vybavenost. Zasíťované pozemky by měly být připraveny k prodeji a do 2,5 let.

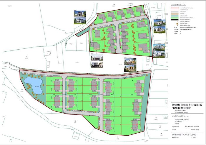
V atraktivní lokalitě ulice Nad Nemocnicí ve Šternberku se začnou budovat pozemky pro výstavbu rodinných domů. Do 2,5 roku by měla developerská společnost realizovat projekční část akce, výstavbu dopravní a technické infrastruktury a její následný převod do vlastnictví města. Město pak nabídne k prodeji připravené pozemky o celkové výměře 29 600 metrů čtverečních, na kterých by mělo vyrůst asi 40 nových rodinných domů. „Tímto krokem je završeno téměř dvouleté úsilí města nabídnout v jedné z nejatraktivnějších lokalit ve městě prostor pro výstavbu dalších rodinných domů, navíc v místě, kde budoucí stavebníci ocení bezprostřední blízkost lesa a kvalitní občanskou vybavenost. U budoucích stavebních pozemků se nachází nově vybudované aquacentrum, atletický stadion, areál šternberské nemocnice, školská zařízení i nákupní možnosti. Jsme potěšeni, že smlouvu uzavíráme se společností, která dlouhodobě působí v našem kraji a může se prezentovat úspěšně realizovanými projekty obdobného charakteru,“ uvedl při podpisu smlouvy s developerskou společností metr2 reality starosta města Stanislav Orság.

Staňte se členy FB skupiny Život v Olomouckém kraji a žádná zpráva vám neunikne.  Sledujte nás na Twitteru, kde pro vás připravujeme plejádu pestrých zpráv.  

Pro město se jedná o naprosto zásadní investici v hodnotě vyšších desítek milionů korun. Vznikne totiž nové komunikační propojení ulice Nad Nemocnicí s ulicí Gen. Eliáše mezi atletickým a fotbalovým stadionem s kompletní dopravní a technickou infrastrukturou (komunikace, chodníky, veřejné osvětlení, inženýrské sítě pro budoucí výstavbu rodinných domů).

Jednatel developerské společnosti, Martin Minář při podpisu smlouvy uvedl, že metr2 reality je společnost s výhradně českým kapitálem a zázemím, která působí na trhu s realitami od roku 2006 a která se zaměřujeme především na region Olomouckého kraje. Společnost se podílela na přípravě a realizaci spousty regionální rezidenčních projektů, kdy za zmínku stojí například stavební pozemky v Olomouci v místní části Chomoutov, Slavonín, Nemilany, Radíkov dále pak v Lipníku nad Bečvou, na Bouzově, v Litovli, v Uničově, v Hnojicích, ve Štarnově, ve Velkém Týnci.