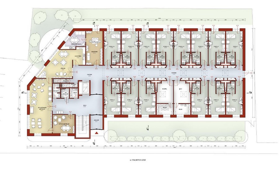
JINDŘICHŮV HRADEC – V rámci Nemocnice Jindřichův Hradec vyroste nový pavilon paliativní péče. Tento projekt poskytne prostor nejen pro léčbu, ale i pro setkávání pacientů s jejich rodinami. Plán zahrnuje také ambulance paliativní medicíny, specializovanou ambulanci pro léčbu bolesti a další pro domácí umělou plicní ventilaci. Stavba by měla začít v září 2024 a dokončení je plánováno na konec roku 2025.
Jak uvedl hejtman Jihočeského kraje Martin Kuba, koncepce pavilonu je schválně jiná než u nemocniční budovy. „Bude naprosto otevřený vůči rodinným příslušníkům. Vše upravené tak, aby tu pacienti i jejich blízcí mohli trávit maximum času společně,“ vysvětlil hejtman.
Staňte se členy FB skupiny Život v Jihočeském kraji a žádná zpráva z kraje vám neunikne. Sledujte nás na Twitteru, kde pro vás připravujeme plejádu pestrých zpráv.
Projekt je navržen tak, aby zahrnoval komplexní služby paliativní péče. „Kromě čtrnácti lůžek, je zde plánována i ambulance paliativní medicíny, ambulance pro léčbu bolesti a ambulance pro domácí umělou plicní ventilaci, kterou někteří pacienti už pak potřebují. Bude tu poskytována terminální péče, nastavení symptomové péče + edukace rodiny v péči o své blízké. Navíc tu budou možné konzultace se sociálním pracovníkem, konziliární služby v paliativní medicíně i pro pobytová zařízení sociálních služeb na jindřichohradecku,“ objasnil Martin Kuba.
Projekt je připravený a pokud vše dobře půjde, v září 2024 by mohla být zahájena stavba a do konce roku 2025 by mohlo být hotovo. Náklady by měly být kolem 100 milionů korun.



